家具の家 no.1とは?
プリツカー賞建築家・坂茂の初期代表作
家具の家 no.1について
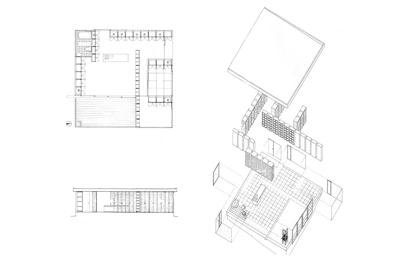
家具の家 No.1は、坂茂が38歳の時に設計した初期の代表作品です(1995年竣工)。通常、家具は建物の中に置かれるものですが、この建築では本棚やクローゼットなどの家具ユニットそのものが、壁や柱の代わりに屋根を支える構造体として機能します。
山中湖の讃美ヶ丘別荘地には坂茂が手掛けた建築作品が3つありましたが、現存するのはこの建物のみです。30代で手掛けた貴重な初期作品であり、後の世界的評価につながる実験精神が凝縮されています。
家具の家のコンセプトは国際的にも高く評価され、これまでにカンパーニャ嬬恋キャンプ場(群馬県)とSimose Art Garden Villa(広島県)で原寸復元され、宿泊施設として運営されています。
建築家 坂茂

坂茂(ばん しげる、1957年東京生まれ)は、紙管や木材といった身近な素材を革新的に活用する建築で世界的に知られる建築家です。2014年にプリツカー賞、2024年に高松宮殿下記念世界文化賞を受賞。2025年には文化功労者に選出、AIA(米国建築家協会)ゴールドメダルの受賞も決定し、日本人として丹下健三、槇文彦、安藤忠雄に続く4人目の栄誉となりました。
1995年にNPO法人ボランタリー・アーキテクツ・ネットワーク(VAN)を設立。阪神淡路大震災以降、世界6大陸で65を超える災害支援プロジェクトを展開し、避難所の間仕切りや仮設住宅を提供し続けています。美しさと社会的意義を両立する、世界で最も行動する建築家です。
主な受賞歴
- AIA ゴールドメダル(2026年授賞)
- アメリカ建築賞(2025年)
- グッドデザイン大賞(2025年)能登半島地震のDLT木造仮設住宅で受賞
- 文化功労者(2025年)
- 高松宮殿下記念世界文化賞(2024年)
- アストゥリアス皇太子賞 平和部門(2022年)
- マザー・テレサ社会正義賞(2017年)日本人初 — 災害支援における人道的活動を評価
- 紫綬褒章(2017年)
- JIA日本建築大賞(2015年)
- プリツカー建築賞(2014年)建築界のノーベル賞と称される世界最高峰の国際賞
- フランス芸術文化勲章オフィシエ(2014年)
- オーギュスト・ペレ賞(2011年)
- 日本建築学会賞 作品賞(2009年)
近年の代表作品
- ブルーオーシャンドーム(大阪万博、2025年)— 世界初CFRP構造ドーム
- 男木島パビリオン(瀬戸内国際芸術祭、2025年)
- ウクライナ・リヴィウ市立病院 新棟(建設中)— CLT木造6階建て
- 豊田市博物館(愛知、2024年)— 木構造
- 下瀬美術館(広島、2023年)— ベルサイユ賞「世界で最も美しい美術館」2024年受賞
- 禅坊 靖寧(兵庫・淡路島、2022年)— 全長100mの空中座禅リトリート
- スウォッチ本社(スイス、2019年)
- ショウナイホテル スイデンテラス(山形・鶴岡、2018年)— 水田に浮かぶホテル
- ラ・セーヌ・ミュジカル(フランス、2017年)
- ポンピドゥー・センター・メス(フランス、2010年)
1995年 竣工
1995年、山中湖の讃美ヶ丘別荘地に竣工。家具ユニットが構造体として屋根を支えるという、前例のない建築が実現しました。2×4工法の合理性と、家具=構造という革新的なアイデアが融合した、坂茂の実験精神の結晶です。
竣工当時の記録













2024年 大規模修復
「原設計通りの復元」— 坂茂の設計思想を忠実に継承しながら、建物を次の時代へ。
目視調査で床の傾斜が確認されたことから修復計画が始まりました。床下調査の結果、山側の束がすべて腐朽し、大引にも損傷が見られました。傾斜地に建つ布基礎の下を雨水が通り抜け、高湿度によって木材が腐朽したことが原因です。真冬の山中湖で、積雪と闘いながらの工事となりました。
修復前
修復後修復の流れ

異変の発見
室内を歩いた際に床の傾斜に気づき、水平器で計測したところ山側に向かって明確な沈下が確認されました。築29年の建物に何が起きているのか——調査が始まりました。

床下調査
床板を撤去して床下に潜り、束と大引の状態を確認。山側の束はすべて腐朽し、指で簡単に崩れる状態でした。大引にも広範囲の損傷が見られました。

原因究明
傾斜地に建つ布基礎の下を雨水が常時通り抜け、床下が高湿度環境になっていたことが腐朽の原因と判明。排水経路がないまま30年近く水分にさらされ続けていました。

外壁解体
外壁パネルを慎重に解体し、2×4躯体の状態を確認。土台周辺を中心に腐朽が進行しており、構造材の交換が必要と判断されました。

腐朽材の撤去
損傷した束・土台・2×4材をすべて撤去。真冬の山中湖、積雪の中での作業となりました。建物をジャッキアップしながら、一本ずつ慎重に抜き取りました。

土台・躯体の交換
新しい木材で土台と2×4躯体を再構築。ステンレス製アンカーボルトで布基礎にしっかりと固定し、耐久性を大幅に向上させました。

防蟻・防腐処理
交換した全木部に防蟻・防腐塗料を塗布。土台から1m以内の木材には特に入念に処理を施し、再発防止を徹底しました。

防湿コンクリート打設
地面からの湿気上昇を遮断するため、防湿ポリフィルムとワイヤーメッシュを敷設した上にコンクリートを打設。腐朽の根本原因を断ちました。

断熱・外壁復元
グラスウール断熱材と構造用MDFパネルで高断熱化を実現。外壁は桧の羽目板で原設計通りに復元し、坂茂の設計意図を忠実に再現しました。

床仕上げ・完成
桧の大引・根太を設置し、押出発泡ポリスチレン断熱材で床下断熱を強化。仕上げは原設計通りPタイルを採用し、竣工当時の姿を取り戻しました。
動画
坂茂 2013年プレゼンテーション
2024年 下瀬美術館に再現された家具の家no.1